JAP | ENG
USA, MEXICO #5/6
1977
MEXICO #2
USA and Mexico Research Trip
In 1977, I was invited by a hotel developer in Kuala Lumpur to take a tour of the United States and Mexico. It was my first time to cross the Pacific Ocean. Below are the flight routes and records of my flight between the United States and Mexico.

Acapulco
La Quebrada
“La Quebrada” means “the broken, the smashed, the snapped” in Spanish.
It became the proper name for a cliff in Acapulco.
“A cliff that looks as if it has been broken (destroyed) by someone” is the origin of the name of the cliff.
Spectator seats and a huge diver’s sculpture built for viewing Quebrada diving.

Photo by author at Quebrada in 1977
Dive Performance!!
I went to see a dive from a cliff of 30-40 meters!
It is performed by a team of specially trained divers from all over the world.
The Quebrada de Acapulco became famous around the world in the 1960s due to the movie starring Elvis Presby.

QUEBRADA CLIFF JUMPING
Can you see the driver’s shadow on the cliff’s face of Quebrada?
It’s a life-threatening dive.

Photo by author at Quebrada in 1977
Eight boats of tourists floated on the water below the Quebrada, hoping to see the jump from below the cliffs.

Photo by author at Quebrada in 1977
There is an observation deck for tourists on the hillside opposite the Quebrada Cliff. In the center of the square is a huge sculpture of a diver.

Photo by author at Quebrada in 1977
Men climb from the surface of the sea to a rocky area after a diving performance

Photo by author at Quebrada in 1977
Flight from Acapulco to Mexico City
A domestic Aeromexico plane takes off from Acapulco and passes through several mountain ranges before reaching the Mexican highland basin.

Photo by author, 1977
I reached the plateau basin of Mexico, and as I looked down from the plane, I found a small village.
The plot of the village was built in a grid pattern, with a core facility in the center.

Photo by author, 1977
After taking off from Acapulco, the domestic Aeromexico plane passed through several plateau mountain ranges and prepared to land over this basin.
At that time, I saw a yellow cloud hanging low. Clouds mixed with sulfide hung all over the place, and it was a bizarre sight that I had never seen before.
The basin was a typical geographical condition that allowed polluted air to stagnate. I had some prior knowledge of air pollution in Mexico City, but seeing it from the plane window once again gave me a visual experience of the severity of the air pollution.
Circling on the runway of Mexico Airport.

Photo by author, 1977
Mexico City
Mexico City is the capital of Mexico, located in the center of Mexico, at an altitude of 2,200 meters above sea level, which is equivalent to the 5th station of Mt. Fuji. Therefore, even in summer, it is cold in the mornings and evenings.
Air pollution
Mexico City is one of the largest cities in Latin America, located in a basin 2,200 meters above sea level. It is surrounded by mountains with an altitude of 3,900 meters. Therefore, I knew from prior knowledge that polluted air tends to accumulate in the basin.

Mexico City Airport (red dot)
This hotel was designed by LEGORRETA, a renowned Mexican architectural firm. The approach from the noisy main street to the quiet accommodation space is cleverly designed. The bold spatial composition and bold colors create and successfully express the originality of modern Mexico.
It is impossible to speak about this historic megalopolis after only one night here, but I was fortunate to have been able to stay at this hotel.


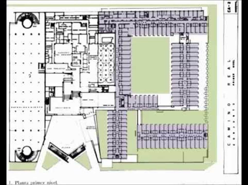
Layout of the Camino Real Hotel

Introductory space in the lobby
When I took a taxi around the city, the driver didn’t speak English, so I tried to see if I could still use my Spanish.
The driver could understand me, so I was able to get to my destination smoothly. In Sao Paulo, I often chatted with international students from Peru and Bolivia, so the lingering memories of that conversation came in handy.
My Japanese friend who was traveling with me was surprised when I suddenly started speaking Spanish.

Lobby Lounge
Mexico City’s origins date back to a floating city built by the Aztecs who arrived here in the 13th century. Lake Texcoco in Mexico’s central plateau was reclaimed by the Aztecs and the capital of the Aztec kingdom was built.
Later, in the 16th century, the Spaniards conquered and destroyed the city, reclaiming Lake Texcoco and making it the present-day Spanish city of Mexico City.

Photo by author, 1977
Cityscape of the city. Mexico is also one of the world’s most earthquake-prone countries.

Photo by author, 1977
There are many Spanish-style mansions. The design of these Spanish-style mansions was favored by California celebrities and wealthy people, and seems to have spread throughout the state.

Photo by author, 1977

Photo by author, 1977